Greenfield Băneasa Logo
Ofertă apartamente GREENFIELD Băneasa

Ofertă apartamente GREENFIELD Băneasa

Apartamente finalizate în Sectorul 1, la prețuri atractive pentru zona de nord a Bucureștiului.

De la 1.550 Euro + TVA pe metru pătrat construit.

Apartamente finalizate

Avantaj Client până la 23.000 Euro

Avantajul Client se calculează ca diferență între prețul de listă și prețul promoțional cu TVA inclus. Oferta este valabilă până pe 31 mai 2026, în limita stocului disponibil. Fiecare apartament se vinde împreună cu un loc de parcare între 10.000 și 13.000 Euro + TVA.

Greenfield Băneasa • 3 camere Tip 3b

3 Camere OS, 108 m2

Etaj 2 Orientare Sud-Vest
Super preț: 169.000 € + TVA

Avantaj Client: până la 22.946 Euro (TVA inclus)

Înapoi la oferte

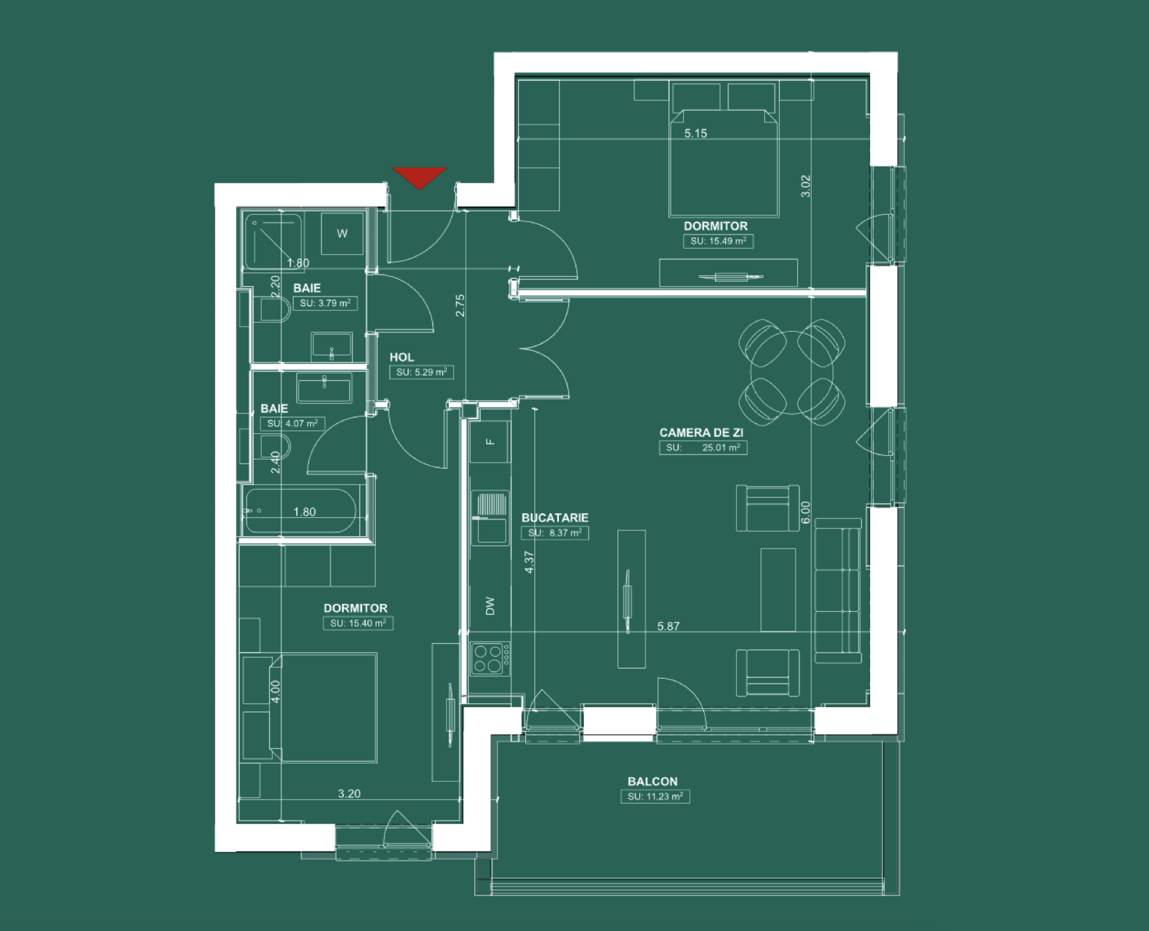
Suprafețe și configurație

Suprafață construită95,55 m²
Suprafață utilă77,42 m²
Terasă/Balcon12,91 m²
Suprafață totală108,46 m²

Plan apartament

Imaginea se afișează integral. Click pentru zoom.

3 Camere OS, 108 m2

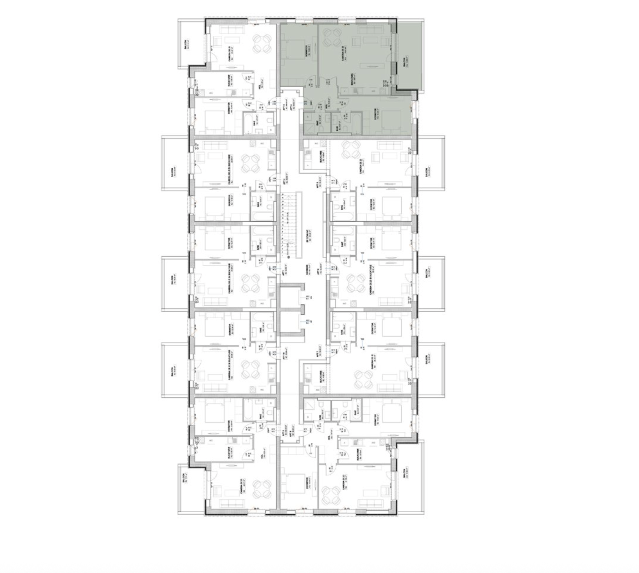
Plan cartier Teilor

Imaginea nu este încă disponibilă pentru acest apartament.

Galerie

Programează acum o vizionare

Completează detaliile, iar un consultant dedicat te va contacta cu mai multe informații.

Tipul apartamentului curent este deja preselectat. Poți selecta și alte opțiuni dacă vrei să primești variante similare.

Datele tale rămân confidențiale. Nu trimitem spam.

Locație

GREENFIELD Băneasa, în Sectorul 1, lângă Pădurea Băneasa

Sector 1 – București, Str. Drumul Pădurea Mogoșoaia nr. 31 - 41
Sector 1București
900 hapădure în proximitate
Nordacces rapid către puncte cheie
203linie STB către oraș
GREENFIELD Băneasa este situat în nordul Bucureștiului, în Sectorul 1, lângă Pădurea Băneasa, o locație rar întâlnită în Capitală, care aduce natura, liniștea și echilibrul în viața de zi cu zi. Cartierul are acces rutier prin Aleea Teișani, conexiune către DN1 și Șoseaua de Centură și transport public prin linia STB 203 către Piața Victoriei. În perspectivă, dezvoltarea Magistralei 6 de metrou, cu stațiile Paris și Bruxelles, va contribui la o conectivitate mai bună a cartierului.

Servicii Premium

20% dintre clienți

au achiziționat cel puțin încă o proprietate IMPACT.

30% recomandări

datorită încrederii în locuințele și serviciile noastre.

3.000+ locuințe livrate

în Greenfield Băneasa

Consultanță în vânzări

Echipa noastră de experți în real estate te ghidează în alegerea proprietății potrivite, în funcție de stilul de viață, nevoi și perspective de investiție.

Soluții de finanțare

Prin parteneriate solide cu principalele instituții bancare, îți oferim acces la produse financiare competitive și consiliere personalizată pentru obținerea creditului potrivit.

Design interior și livrare la cheie

Îți oferim sprijin pentru amenajarea completă a proprietății, de la concept și design interior până la mobilare și livrare gata de locuit.

Orașul de 15 minute, la scara unui cartier

Mai aproape de tot ce ai nevoie

Sport
  • Indoor la Wellness Club
  • Outdoor în cartier sau prin pădure
Cumpărături
  • La Greenfield Plaza
  • Spații comerciale în cartier
Spații verzi
  • 900 ha de pădure
  • 100.000 mp de spații verzi
  • 2 parcuri private
  • Alei de promenadă
  • Locuri de joacă pentru copii
Transport public
  • Linia STB 203: Greenfield - Piața Victoriei
  • Viitoarea Magistrală 6 de Metrou în proximitate
Educație
  • Campusul privat Avenor College
  • Școala și grădinița de stat, aflate în construcție
Infrastructură finalizată
  • Bulevarde ample
  • Trotuare largi
  • Distanțe mari între blocuri
  • Mobilier urban
  • Peisagistică decorativă
  • Parcări private interioare și exterioare

De ce să alegi Greenfield?

  • Prețuri atractive
  • Locație rară în București
  • Aer curat
  • Monitorizare continuă a calității aerului
  • Comunitate cu peste 7.500 de locuitori
  • Comunitate pet-friendly
  • Facilități la îndemână
  • Stil de viață echilibrat
  • Certificat verde BREEAM Excellent
  • Apartamente binefăcute
  • Mutare imediată
  • Tipologii și compartimentări diverse
  • Suprafețe vitrate mari
  • Terase mari și late
  • Înălțime camere 2,7 m
  • Încălzire în pardoseală
  • Termostat în fiecare cameră
  • Două lifturi în fiecare bloc
  • Dezvoltator cu 35 de ani experiență
  • Dezvoltator listat la Bursa de Valori București
  • Servicii de finanțare
  • Servicii de mobilare
  • Potrivit pentru locuire sau investiție
  • Susține calitatea vieții pe termen lung

Experiență completă de wellness și fitness

Mai aproape de tot ce ai nevoie

Galerie

Imagini din cartierul Greenfield Băneasa.

Testimoniale locuitori

Programează acum o vizionare

Completează detaliile, iar un consultant dedicat te va contacta cu mai multe informații despre apartamentele disponibile în ofertă.

Programează acum o vizionare

Completează detaliile, iar un consultant dedicat te va contacta cu mai multe informații.

Datele tale rămân confidențiale. Nu trimitem spam.

Abonează-te la newsletter pentru a fi la curent cu noutățile, evenimentele și promoțiile noastre.

Niciodată nu vom divulga adresa ta de email și nu vom face spam. Făcând click pe „Trimite”, ești de acord cu Termeni și Condiții și Nota de informare